
μ - Living
/BA 6 mit Marielle Jopp
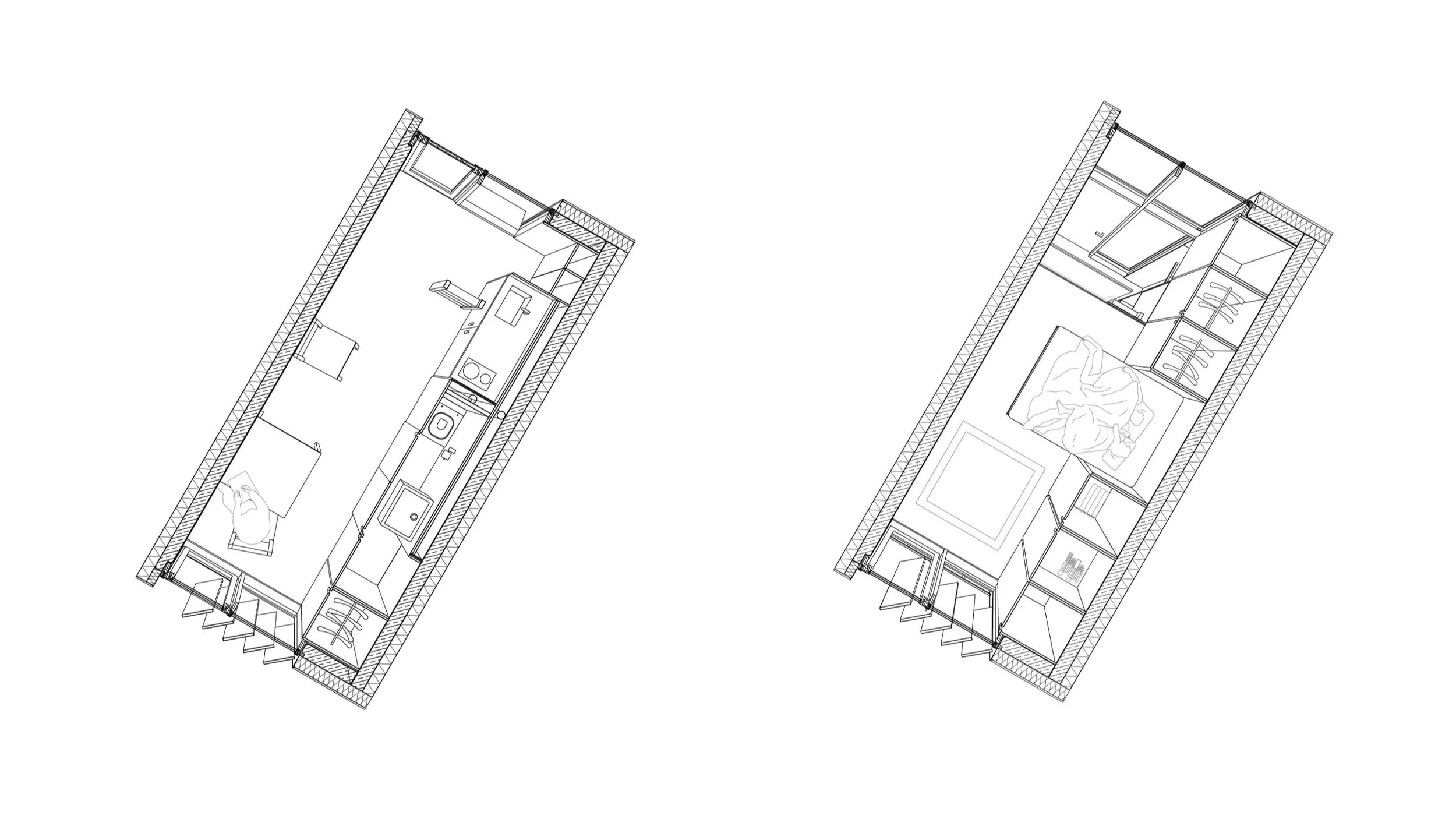
Im Nürnberger Stadtteil “Gostenhof” gibt es viele, winzige Baulücken, die zum Beispiel als Zufahrt zu Innenhöfen o.Ä. genutzt werden. Dieses Projekt beschäftigt sich damit, wie man solche Baulücken nutzen könnte, um den immer steigenden Mietpreisen gegen zu wirken.
Der Baukörper kommt mit einer lichten Breite von lediglich drei Metern aus und befindet sich schwebend, zwischen zwei Stadthäusern.
Es gibt zwei identische Maisonette-Wohnungen mit einem Effizienten Grundriss. Wobei hier darauf geachtet wurde, dass alle wichtigen Gerätschaften und Möbel in die Wand versenkt werden können.
Im Untergeschoss befinden sich Bad und Küche und im oberen die Privateren Nutzungsmöglichkeiten.

